Kantoorruimte groene loper - Maastricht

Algemeen
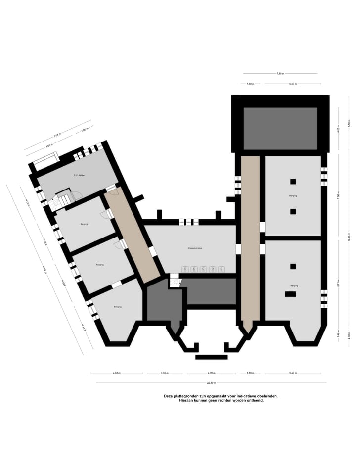
Op een centrale en goed bereikbare locatie nabij de Groene Loper en het stationsgebied van Maastricht bieden wij circa 660 m² representatieve kantoorruimte te huur aan, inclusief maar liefst 24 eigen parkeerplaatsen.
Het karaktervolle gebouw heeft een rijke geschiedenis: ooit gebouwd als school, werd het in de jaren ’90 volledig gerenoveerd en omgebouwd tot een functioneel kantoorgebouw. Binnenkort wordt bovendien het dak vernieuwd en voorzien van moderne isolatie, waarmee het pand niet alleen comfortabeler, maar ook energiezuiniger wordt — klaar voor de toekomst.
Dankzij de ruime indeling, het vele daglicht en de praktische kelderruimte (het object is volledig onderkelderd) is dit pand ideaal geschikt voor uiteenlopende kantoorconcepten.
Parkeren is geen enkel probleem: op het eigen terrein zijn 24 parkeerplaatsen beschikbaar — een zeldzaamheid in deze centrale stadsomgeving.
Ligging
De Scharnerweg is een van de historische verbindingswegen van Maastricht en vormt de schakel tussen de binnenstad en de uitvalswegen richting de snelwegen. De directe omgeving is volop in ontwikkeling en maakt deel uit van het dynamische gebied rond de Groene Loper, waar wonen, werken en ontmoeten op een moderne manier samenkomen.
Bereikbaarheid
De locatie is uitstekend bereikbaar, ongeacht het vervoermiddel.
Met de auto zijn de A2 en A79 binnen enkele minuten te bereiken, waardoor steden als Heerlen, Sittard en Luik vlot toegankelijk zijn.
Het NS-station Maastricht ligt op slechts 700 meter loopafstand, en ook diverse busverbindingen bevinden zich in de directe nabijheid.
Daarnaast is de locatie fiets- en voetgangersvriendelijk, dankzij de nieuwe infrastructuur van de Groene Loper.
Kort samengevat
- Ca. 660 m² kantoorruimte
- Volledig onderkelderd
- 24 eigen parkeerplaatsen
- Centrale ligging nabij station en Groene Loper
- Uitstekende bereikbaarheid per auto, fiets en OV
- Nieuw dak met moderne isolatie (in voorbereiding)
Neem contact met ons op voor meer informatie of details over dit object





